• Home
  • Mes écrits
  • Photographie
  • La Trénardie
  • Autres
    • Tissage
      • Nouveau site ( Français )
      • Old website ( Français / English / Italian )
    • ChatGPT
    • L'Ane des bois
    • Four à pain
    • Harmonica
    • Tournage du bois
    • Vidéo drone
  • Contact
  • Accueil
  • Alentours
  • Avant travaux
  • Travaux
  • Etapes
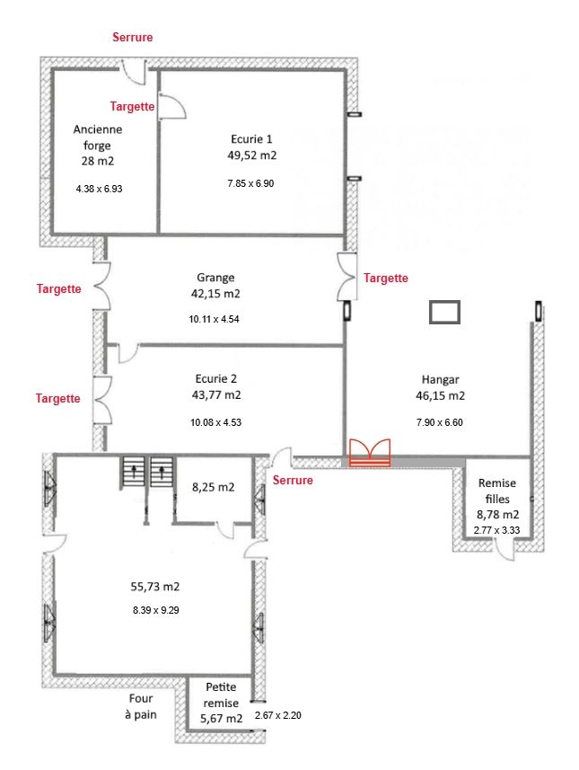
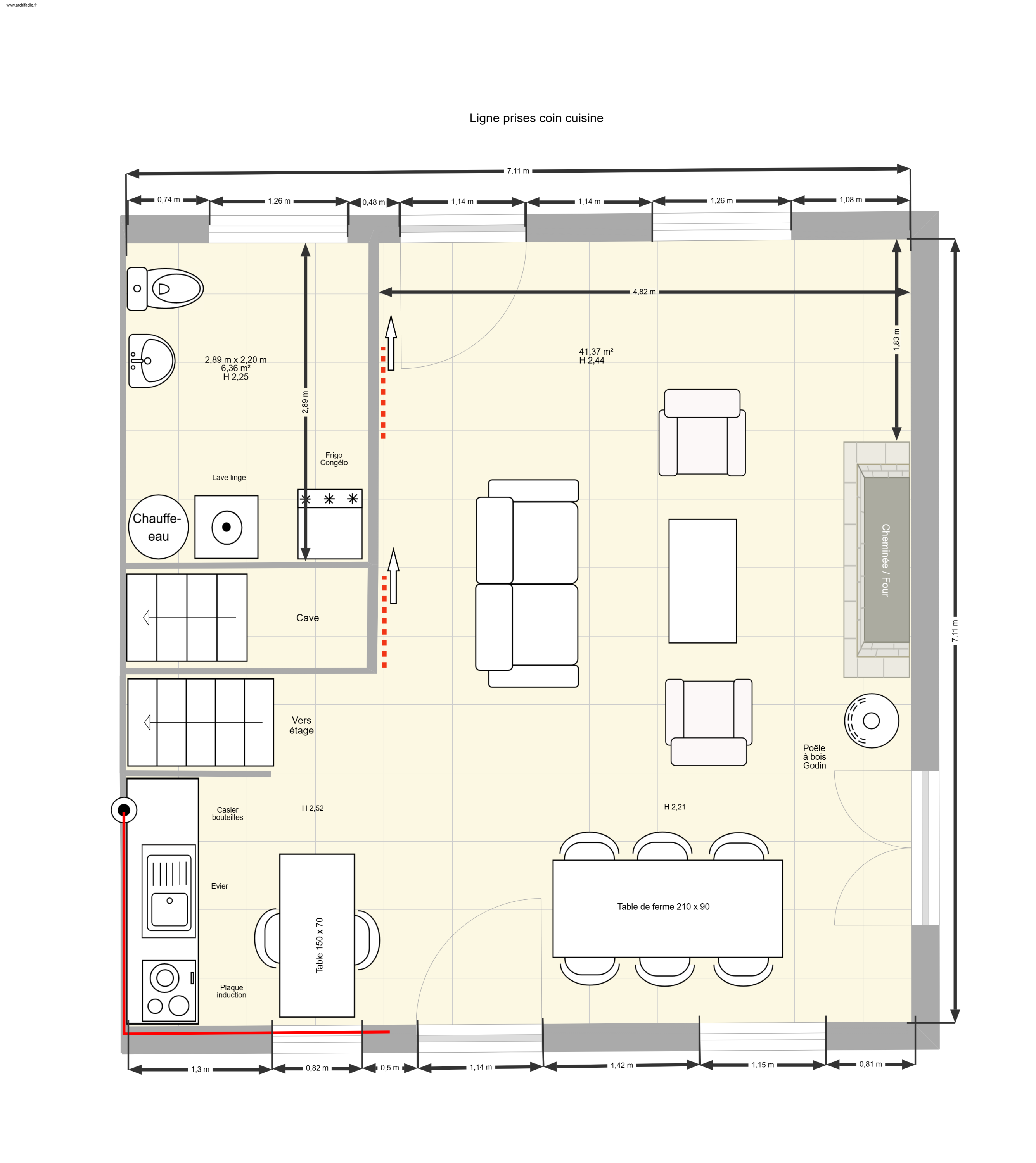
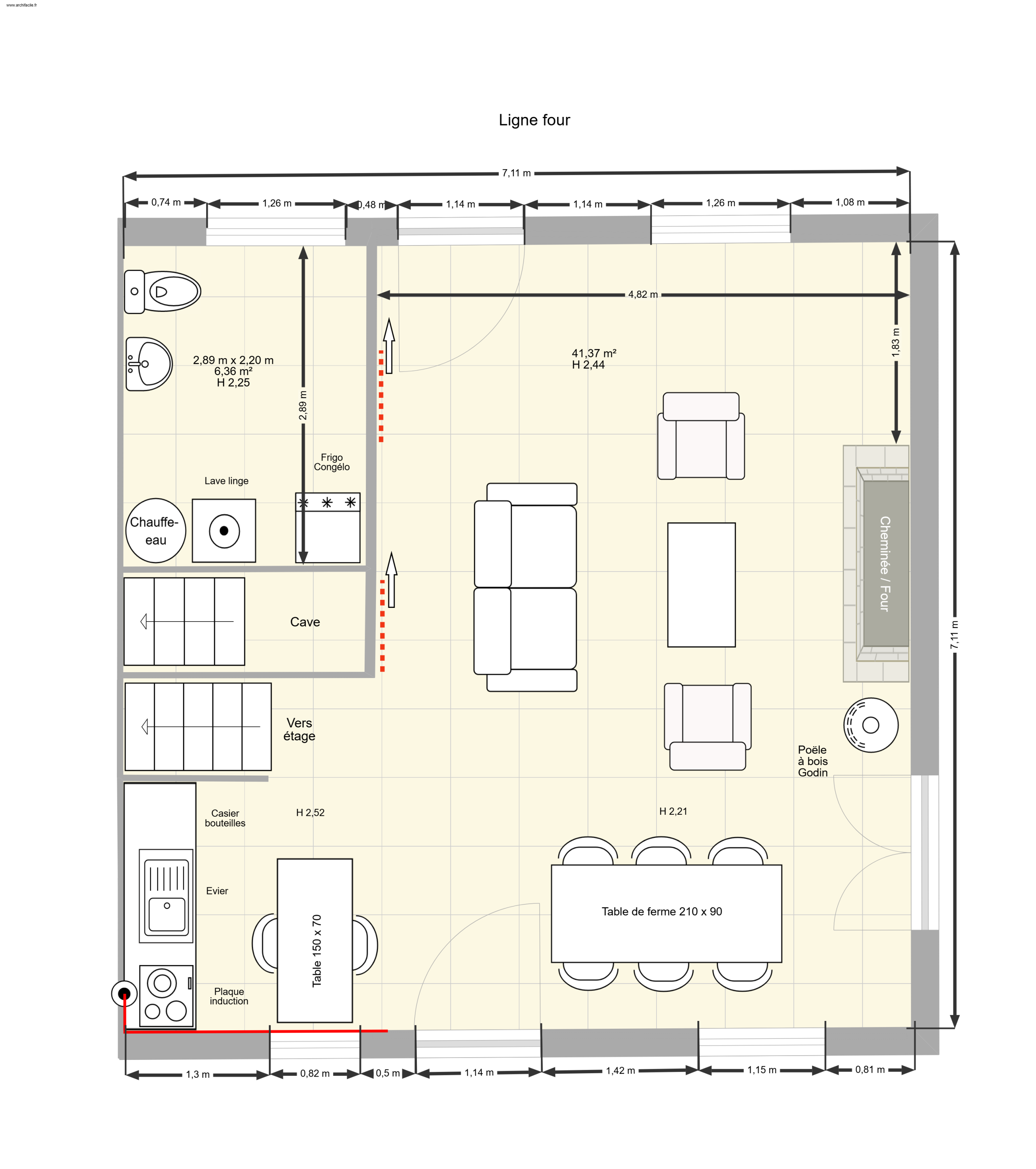
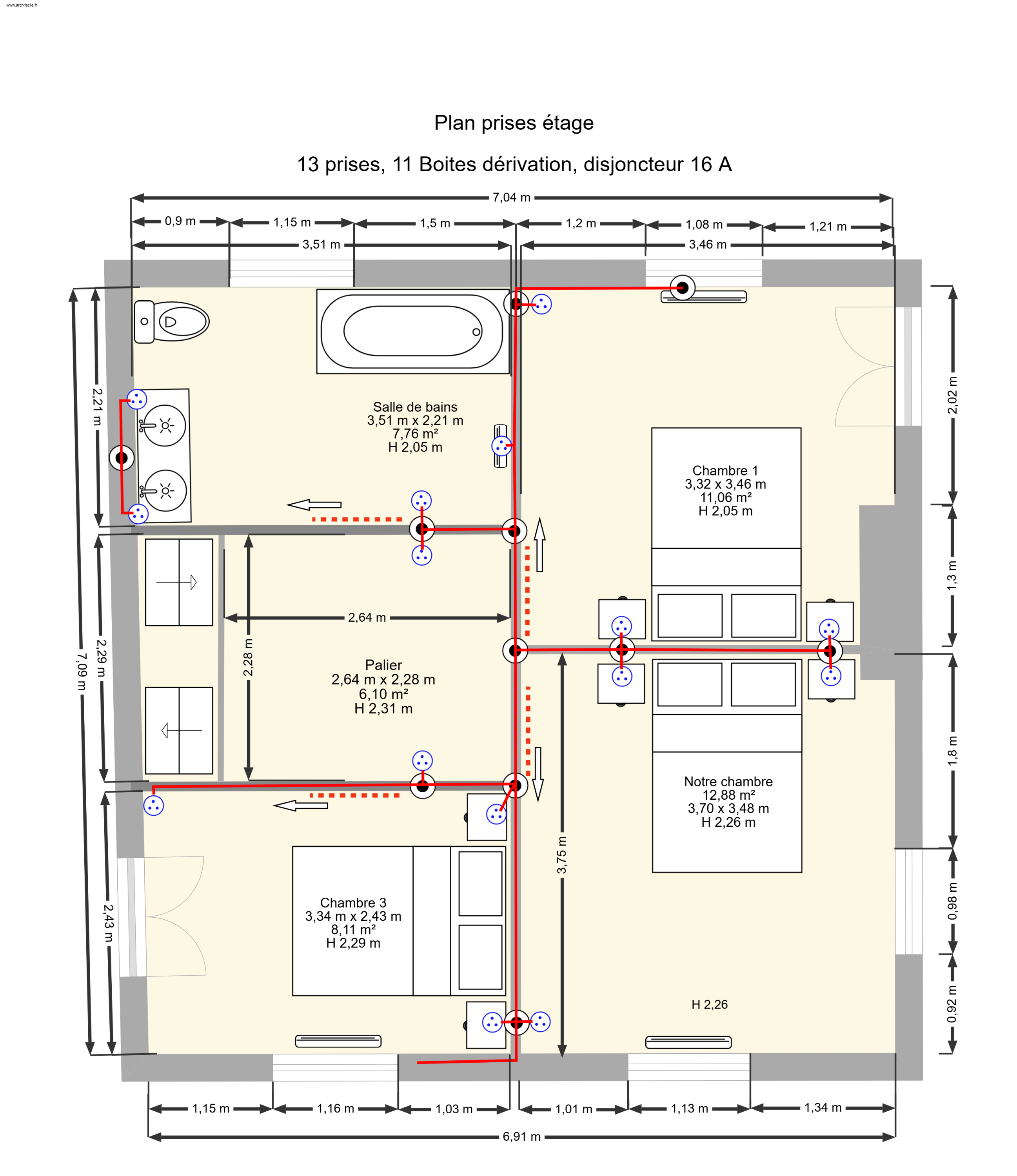
  • Plans

REPARATION FORGE (enture à mi-bois)