• Home
  • Mes écrits
  • Photographie
  • La Trénardie
  • Autres
    • Tissage
      • Nouveau site ( Français )
      • Old website ( Français / English / Italian )
    • ChatGPT
    • L'Ane des bois
    • Four à pain
    • Harmonica
    • Tournage du bois
    • Vidéo drone
  • Contact
  • Accueil
  • Restauration
  • Apprendre
    • Bibliothèque gratuite
    • Glossaire
    • Initiation
      • Introduction
      • Les phases du tissage
      • Le traçé du tissu
      • Le remettage
      • L'ourdissoir lyonnais
      • L'ourdissage sectionnel
      • Le peigne
    • Techniques
      • Filature
      • Dévidage
      • Ourdissage
      • Impression sur chaîne
      • Lisage
      • Remettage
      • Piquage au peigne
      • Tordage
      • Canetage
      • Mise en route
      • Tirelle
      • Noeuds
      • Défauts de tissage
      • Lancés
      • Moirage
      • Décomposition
    • Tours de main
      • 1- Remettage
      • 2- Piquage en peigne
      • 3 - Nouage
      • 4 - Dévidage
      • 5 - Cannetage
      • 6 - Mise en route
    • Cours de tissage
      • Bâti d'un métier
      • Les rouleaux
      • Bascules
      • Lève et baisse
      • Mécanique 104
      • Fonctionnement de la 104
      • Lisage
      • Le battant
      • Position rouleau
      • Le régulateur
      • Réduction et avance
      • Mise au métier d'une chaîne
      • Mise en route
      • Navettes à soie
      • Battage
      • Préparation des fils
      • Ourdissage mécanique
  • Façonnés
    • Introduction
    • Vulgarisation
    • Définitions
    • Le métier de façonné
    • Principes du façonné
    • Le jeu des crochets
    • Les cartons
    • La chaîne de cartons
    • Mécanique 104 en détail
    • Pour en finir
    • Montage façonné
    • Empoutage
    • Colletage, pendage, appareillage
    • Autres façonnés
  • Matériel
    • Petites annonces
    • Construire son métier
    • Navettes lyonnaises
    • Autres outils
    • Métier à la tire
      • Principes
      • Matériel
      • Enfonçons le clou...
      • Métiers à la tire
  • Chroniques
    • Mon histoire de canut
    • Joseph Perret, mon grand-père
    • Mon petit monde à moi
    • Photographies d'antan
    • Georges Mattelon
    • Soierie lyonnaise
    • Idée reçue
    • Bétisier
    • Delphos
    • La Marseillaise
    • Grenade
    • Gilet
    • Peignier
    • Mariano Fortuny
    • Philippe de la Salle
    • Ralph Griswold
  • Tissus/Fils
    • Nomenclature
    • L'éducation du ver à soie
    • Les fils de soie
    • Taffetas
    • Le roi Velours
    • Velours ciselé
    • Velours Grégoire
    • Velours uni
    • Gaze anglaise
    • Taffetas caméléon
    • Le broché
    • Damas et damassés
    • Crêpe de Chine
    • Lampas
    • Tissus à jours
    • Soieries perlées

Construisez votre métier à tisser

Après avoir en vain recherché sur Internet les plans d'un métier à tisser correct, nous avons décidé de le réaliser et de vous le fournir nous-même...

Il s'agit de l'un de nos métiers à tisser, de type scandinave mais réalisé en France dans les années 1980-1985. Inspiré des métiers suédois Glymakra, largement diffusés en Europe, ce métier leur apporte des améliorations importantes, en particulier concernant les ensouples arrière et avant.

Ce métier présente de plus l'avantage d'être simple à fabriquer. Il ne comporte aucune pièce façonnée qui ne soit facilement constructible par un bricoleur un peu équipé pour travailler le bois.De plus, 90% de ses éléments utilisent une section unique de bois, ce qui facilitera l'approvisionnement.

Nous vous fournirons donc tout ce qu'il vous faut pour fabriquer vous-même ou faire fabriquer ce métier par un menuisier :

- La liste complète détaillée de toutes les pièces le composant.

- Un plan complet, détaillé et entièrement côté.

- Des photos détaillées.

- Des descriptifs, conseils et explications simples et complètes.


De construction simple, vous pourrez de plus choisir vous-même la largeur désirée.

Caractéristiques principales :


- Fabriqué en chêne, vous pourrez utiliser un bois moins coûteux, comme le hêtre, ou même le pin (à condition qu'il soit bien sec et dense).

- Assemblages par tenons et mortaises.

- Battant suspendu.

- Boites à navettes et lance-navette.

- Ensouple-ourdissoir d'un diamètre de plus d'un mètre.

- Freinage de l'ensouple arrière par cordes et contrepoids (besace).

- Avance du rouleau avant par levier (roue à rochet).

- Banc intégré.

- Quatre cadres (ou plus), six pédales (ou plus)

- Commande indépendante des cadres, système à la lève, commande par poulies.

Vous disposerez ainsi d'un métier à tisser, solide, sûr et bien conçu qui vous apportera les plus grandes satisfactions pour un budget trés raisonnable.

Si vous êtes débutant, vous pourrez ensuite consulter les autres rubriques du site, existantes ou à venir pour savoir comment compléter votre matériel et apprendre à tisser.

Largeur hors tout: largeur du bâti + 50 cm + 50 cm (2 boites à navettes)
Hauteur totale : 161 cm
Longueur hors tout : 190 cm

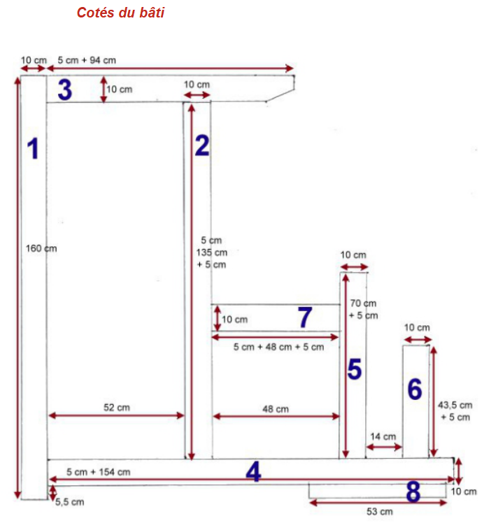
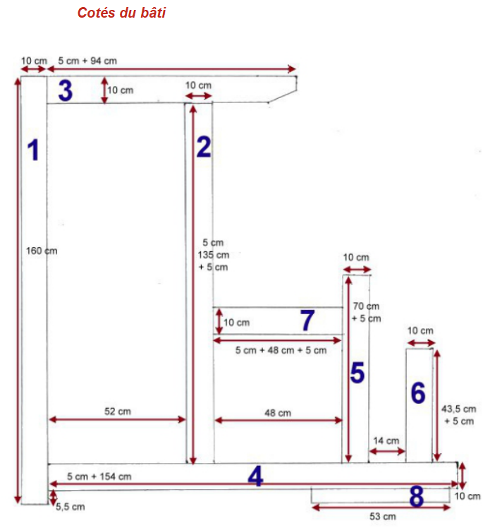
Pièce      Longueur totale          Section           Qté
1               160 cm            10 cm x 5 cm        2
2               145 cm            10 cm x 5 cm        2
3                 99 cm            10 cm x 5 cm        2
4               159 cm            10 cm x 5 cm        2
5                 75 cm            10 cm x 5 cm        2
6              48,5 cm            10 cm x 5 cm        2
7                 58 cm            10 cm x 5 cm        2
8                 53 cm            5,5 cm x 5 cm       2

 Pièce            Longueur totale         Section        Qté
A, B, C, D, E        120 cm 10 cm            5 cm           1


Nous avons choisi 120 cm de tissage, adaptez votre choix...

Ces traverses peuvent être assemblées aux cotés du bâti par tenons et mortaises ou assemblage à mi-bois renforcé par des équerres, selon vos compétences et l'outillage dont vous disposez. Les traverses B et E font office de poitrinières arrière et avant.

Les pédales sont percées pour le passage d'une tige filetée (diam. 12 mm).Deux équerres permettent de les maintenir.On intercalle une rondelle entre chaque pédale pour limiter leur contact.L'autre extrémité des pédales recevra des pitons pour les relier aux marches.

Les quatre planchettes des boites à navettes sont rainurées sur toute leur longueur, en a. La rainure mesure 7 mm de profondeur sur 5 mm de hauteur. Elles doivent permettre de laisser coulisser les rats avec un certain jeu.

Le rouleau avant comporte 3 flasques (1) de 15 cm de diamètre percées en leur centre d'un trou rond de 12 mm pour la passage d'une tige filetée de 12 mm. Les flasques comportent 8 encoches de 2 cm de large par 4 cm de hauteur qui recevront 8 traverses. Les flasques sont enfilées sur la tige filetée et bloquées à l'aide d'écrous : une flasque à chaque extrémité, la troisième au centre.Les 8 traverses sont alors fixées.

Ensouple arrière

©Philippe DEMOULE